2020年11月12日上午11时30分左右,汾阳市污水处理厂进厂干管改造工程项目发生一起中毒窒息死亡事故,造成3人死亡,直接经济损失523.1万元。
事故发生后,省、市领导高度重视,先后做出重要批示。依据《中华人民共和国安全生产法》、《生产安全事故报告和调查处理条例》(国务院令第493号)规定,经吕梁市人民政府批准,由吕梁市应急局牵头,会同市城市管理局、市公安局、市总工会、汾阳市政府等相关部门成立了事故调查组,向市纪委监委发出了邀请函参与事故调查。事故调查组坚决贯彻落实省、市领导批示精神,按照科学严谨、依法依规、实事求是、注重实效和“四不放过”的原则,查清了事故发生的经过和应急救援情况,委托相关机构对事发井内有毒气体进行了鉴定,聘请相关专家进行技术论证,查明了事故发生的直接和间接原因,提出了对有关责任人员及责任单位的处理建议和事故防范措施。现将有关情况报告如下:
一、基本情况
(一)事故相关单位情况
1.建设单位:汾阳市公用事业服务中心,统一社会信用代码:12142303670191977M,事业单位法人,法定代表人申东高。
2.施工单位:国安建设有限公司,法定代表人宋浩,统一社会信用代码:911401007902346288,注册资本2亿元。营业执照注册地址为太原市杏花岭区旱西关街38号商住楼1单元502房。经济类型:有限责任公司,经营期限:2006年7月19日至2026年7月18日;《建筑业企业资质证书》编号:D114042790),领证日期为2017年7月14日,有效期至2021年2月4日,资质类别及等级:建筑工程施工总承包壹级;市政公用工程施工总承包壹级;钢结构工程专业承包壹级;《安全生产许可证》发证机关为山西省住房和城乡建设厅;有限期为2019年11月29日至2022年11月29日。
经营范围为房屋建筑工程施工总承包、市政公用工程施工总承包、机电安装工程施工总承包、建筑装修装饰工程专业承包、土石方工程专业承包、消防设施工程专业承包、地基与基础工程专业承包、钢结构工程专业承包、公路工程施工总承包、水利水电工程施工总承包、电力工程施工总承包、机电工程施工总承包、消防设施工程专业承包、桥梁工程专业承包、隧道工程专业承包、园林绿化工程施工、绿化养护、建材的销售、建筑工程咨询。资质类别及等级:建筑工程施工总承包壹级;市政公用工程施工总承包壹级;钢结构工程专业承包壹级。
3.监理单位:中经国际工程监理集团有限公司(以下简称中经国际),法定代表人为许娜,统一社会信用代码为91110101059251074T,成立于2012年12月2日,营业执照住所地为北京市东城区滨河路1号708房间,有效期至2032年12月20日,公司类型为有限责任公司。经营范围为工程管理服务、工程监理、建设工程项目管理、建设工程造价咨询、招标代理、体育赛事策划、销售机电设备等。该公司企业资质为机电安装工程专业资质乙级、电力工程专业资质乙级、公路工程专业资质乙级、市政公用工程专业资质乙级。
4.设计单位:太原市精益市政工程设计有限公司,法定代表人为雒刚毅,统一社会信用代码为91140100602081557W,公司类型为有限责任公司(自然人投资或控股),住所地太原市杏花岭区新开北巷3号东瑞小区2号楼1单元11号,注册资本800万元整,成立于1998年4月8日,有效期至2026年2月17日,经营范围为市政工程设计、特种设备(压力管道设计)、工程测量、工程咨询、描晒图纸、风景园林工程设计(依法须经相关部门批准后方可开展经营活动)。
设计资质证书情况:市政行业(给水工程、桥梁工程、环境卫生工程、排水工程、城镇燃气工程、热力工程、道路工程)专业乙级;风景园林工程设计专项乙级,可从事资质证书许可范围内相应的建设工程总承包业务乙级项目管理和相关的技术与管理服务。
(二)工程项目基本情况
项目名称:汾阳市污水处理厂进厂干管改造工程(景区路-污水处理厂)。
该工程位于汾阳市文峰街道建昌村汾阳市污水处理厂东侧,起点位于景区路P-1井(桩号为K0+000,坐标为X=4123171.580;Y=572569.675),终点位于污水处理厂提升泵站前污水检查井P-8井(桩号为K0+616.812,坐标为X=4123670.219;Y=572670.482)。管线全长617米,坡度i=0.0015,埋深5.99m~8.32m。 全线采用顶管施工,管材选用DN1200钢筋混凝土顶管专用管,管道每隔100米左右设置工作井及接收井,工作井采用Ф7000mm圆形钢筋混凝土沉井,Ф5000mm圆形钢筋混凝土接收井,顶管施工完毕后,工作井、接收井内加做矩形1300×1100直线钢筋混凝土污水检查井。该工程是汾阳市根据省、吕梁市实施打赢碧水保卫战2020年决战计划的部署安排启动的市政公用工程,无需办理施工许可、土地和规划手续(见附件:《汾阳市住房和城乡建设管理局关于汾阳市污水处理厂进厂污水干管改造工程未办理施工许可的说明》、《汾阳市自然资源局关于汾阳市污水处理厂进厂干管改造工程无需办理土地和规划手续的说明》)2020年5月26日,市公用事业服务中心通过公开招标方式,确定施工单位为国安建设有限公司,中标价383.45万元。2020年5月30日工程开工,2020年7月15日工程基本完工,仅剩新井(P-1)与旧检查井连通工作未完成。因污水处理厂污水调节池汇水池(不属本工程范围)不具备通水条件,上游管道存在淤泥无法连通等原因,经建设单位与施工单位协商,工程暂停,确定待具备条件后继续施工。
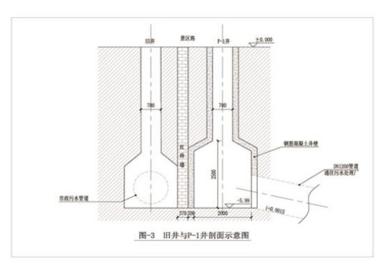
(三)事发污水井(P-1)基本情况
事发污水井(P-1)为设计起点井,位于旧检查井北2.5米,为钢筋混凝土检查井,南壁紧临砖砌旧检查井,P-1检查井内径长*宽*高为2.0米*2.0米*2.5米,壁厚0.20米,井内底设计标高730.70米,埋深4.67米,南壁留1.2米孔洞,为下一步施工做准备,已对总厚0.37米旧壁凿去0.24米。(如图)


二、事故经过及救援情况
(一)事故发生经过
2020年11月10日晚,项目实际负责人苏秋才电话通知其司机郭瑜:“明天早上联系王文平(临时雇佣工人,事故中死亡),你驾驶皮卡车拉上气泵、发电机、抽水泵去建昌村加气站往东100米路中间的污水检查井,把新旧检查井内的污水抽干”。
11月11日约10时至下午17时30分王文平组织抽水作业。11月12日上午继续抽水,11时20分许,王文平发现一根抽水管扁了,经检查污水井(P-1)内一台水泵连接的直管开裂,王文平(现场指挥人)便安排田富茂(临时雇佣工人,事故中死亡)到井下检修水管,3~5分钟后,田富茂中毒晕倒。任伯成(临时雇佣工人,事故中死亡)、王文平先后下井施救,均晕倒在井下。
(二)应急救援及善后处置情况
11时40分左右,事故现场人员郭瑜感觉情况不对,立即给苏秋才打电话(未通),便给曹鑫(苏秋才妻哥)打电话,随后拨120、119报警。约10分钟后,曹鑫、苏秋才相继赶到现场。3~5分钟后,文峰派出所民警、120急救车和消防大队陆续赶到,并立即展开救援。12时09分,汾阳市委、市政府接报后,第一时间组织公安、应急、公用事业、消防、吕安危化、蓝天救援、卫生等部门赶赴现场进行救援。12时50分,汾阳市应急局电话报告吕梁市应急局。13时10分,吕梁市应急局电话报告吕梁市委市政府、省应急厅。13时30分救援结束。田富茂、任伯成、王文平被送往汾阳医院,经抢救无效死亡。
事故发生后,汾阳市公安局对相关涉事人员传唤调查并监视居住。11月14日,汾阳市成立了以市委书记为组长的国安建设有限公司“11.12”事故处置工作领导组,下设事故善后处置组等6个工作组。11月16日3名遇难者善后工作已完毕,家属情绪平稳。
(三)人员伤亡及经济损失情况
1.人员伤亡情况
田富茂,男,身份证号14**************19,汾阳市石庄镇阳泉村人(死亡)。
任伯成,男,身份证号14**************18,汾阳市三泉镇上庄村人(死亡)。
王文平,男,身份证号14**************11,交城县西社镇丽湾村人(死亡)。
2.经济损失情况
直接经济损失:523.1万元
三、事故原因及性质
事故调查组依法调取了有关单位的资质文件和施工资料,对事故涉及的相关人员进行了调查询问,委托专业机构对事发污水井内有毒气体进行鉴定,聘请相关专家进行技术原因论证,认定了事故原因及性质。
(一)直接原因
1.违规指挥、违章作业。汾阳市污水处理厂进厂干管(景区路-污水处理厂)改造工程施工项目部在对新旧检查井作连通准备工作时,劳务人员田富茂、任伯成、王文平、郭瑜四人在对新旧检查井进行抽水作业期间,未经批准,未落实安全防护措施的情况下,冒然进入有限空间开展维修作业,致使一人吸入井内高浓度的硫化氢(H2S)等有毒混合气体中毒和窒息,导致事故发生。
2.盲目施救。其他作业人员救人心切,慌乱中在没有采取任何防护措施的情况下,两人先后冒然进入有限空间进行施救,吸入井内高浓度的硫化氢(H2S)等有毒混合气体造成二人中毒和窒息,导致事故扩大。
(二)间接原因
1.国安建设有限公司安全生产主体责任落实不到位,管理混乱,是导致本起事故发生的重要原因。该公司安全生产组织机构不健全、制度不完善。汾阳市污水处理厂进厂干管(景区路-污水处理厂)改造工程施工项目部未落实施工作业和危险作业审批制度,未开展安全隐患排查,未制定进入有限空间作业操作规程、作业方案和有限空间作业应急处置预案,未建立应急救援组织,缺少必要的安全设施和应急救援器材装备,未开展应急救援演练,未对作业人员进行安全教育培训,未落实施工现场必要的职业健康保障措施,在没有经过建设单位和监理单位的批准,擅自组织复工,开展施工现场作业,是典型的不落实安全生产主体责任行为,且不具备与经营活动相适应的安全生产知识和管理能力。
2.中经国际履行现场监理职责不到位。作为监理单位,虽然签发了《工程暂停令》,但仍需履行职责,事故发生时,监理人员未在现场进行督促检查。
3.汾阳市公用事业服务中心监督检查不到位。监理单位下发了《工程暂停令》后,施工及监理人员撤离现场,施工现场长期无人值守。施工单位在未履行报批手续的情况下擅自组织施工,作为建设单位,未及时发现并予以纠正。
(三)事故性质
事故调查组认定,该起事故是一起违章指挥、违规作业、违反劳动纪律,盲目组织施救导致的一起较大生产安全责任事故。
四、对事故相关责任单位的处理建议
1.国安建设有限公司。作为施工单位,主体责任落实不到位,管理混乱,随意更换项目经理,未将临时用工人员纳入其安全管理体系,未对新入场人员按规定进行三级安全教育培训,对项目执行经理管理不到位,致使项目执行经理未经批准擅自组织临时雇佣人员进场作业,未组织应急演练,未有效排查事故隐患,未及时制止和纠正违章指挥、违规作业行为。山西省住建厅已依法对国安建设有限公司安全生产许可证暂扣。
建议:根据《中华人民共和国安全生产法》第一百零九条第二项,给予国安建设有限公司处70万元的罚款。
2.中经国际工程监理集团有限公司。作为监理单位,在本项目下达了《工程暂停令》后,监理人员巡查、检查不到位,对施工单位擅自组织施工失察。
建议:依据《中华人民共和国安全生产法》有关规定给予监理人员相应的行政处罚。
3.汾阳市公用事业服务中心。作为建设单位,对监理单位、施工单位监督检查力度不够,对施工单位擅自组织施工未及时发现并制止。
建议:依据《安全生产领域违法违纪行为政纪处分暂行规定》给予有关责任人员相应的政纪处分。
4.汾阳市人民政府。对本起事故负有属地责任。
建议:汾阳市人民政府向吕梁市人民政府作出深刻检查。
五、对事故相关责任人的处理建议
(一)建议追究刑事责任人员
1.王文平,汾阳市污水处理厂进厂干管(景区路—污水处理厂)改造工程抽水作业现场负责人,安全意识淡薄,雇佣未经安全培训的临时人员进行抽水作业,抽水设备出现故障后,在未配备作业防护设备、个体防护用品的情况下,违规指挥作业人员下井作业。事故发生后,盲目组织施救,对事故发生负直接责任。
建议:追究刑事责任,因其在事故中死亡,免于追究。
2.田富茂,抽水作业现场施工人员,毫无安全意识,在未配备作业防护设备、个体防护用品的情况下下井违规作业,造成严重后果,对事故发生负有直接责任。
建议:追究刑事责任,因其在事故中死亡,免于追究。
(二)建议给予行政处罚人员
1.苏秋才,国安建设有限公司员工,汾阳市污水处理厂进厂干管(景区路—污水处理厂)改造工程项目执行经理,在未办理复工手续,未对临时雇佣工人进行安全培训、应急救援培训,未通知项目经理、监理单位、建设单位擅自组织工人进行抽水作业,对事故发生负有直接管理责任。
建议:由国安建设有限公司做出相应处理。
2.贾非贤,国安建设有限公司员工,汾阳市污水处理厂进厂干管(景区路—污水处理厂)改造工程专职安全员,安全检查不到位,对作业人员岗前安全培训教育不到位。
建议:由国安建设有限公司做出相应处理。
3.吕培生,国安建设有限公司员工,汾阳市污水处理厂进厂干管改造工程项目经理,对项目部安全管理不严,技术交底不到位,安全教育、应急救援培训不到位,应急救援设备配备不齐全,未组织应急演练。
建议:由国安建设有限公司做出相应处理。
4.杨新文,国安建设有限公司安全副总,未履行任何手续,随意更换项目经理,对项目管理不严,履职不到位。
建议:由国安建设公司做出相应处理。
5.宋浩,国安建设有限公司法定代表人、总经理,主体责任落实不到位,履行安全生产管理职责不到位。
建议:依据《中华人民共和国安全生产法》第九十二条第二项,处上一年度收入40%的罚款。
6.石永强,中经国际工程监理集团有限公司员工,汾阳市污水处理厂进厂干管改造工程监理员,工程暂停期间巡查、检查不到位,对施工单位擅自抽水作业失察。
建议:由中经国际工程监理集团有限公司做出相应处理。
7.李俊梅,中经国际工程监理集团有限公司汾阳市污水处理厂进厂干管改造工程总监,对现场监理人员的管理有缺位,对施工单位擅自抽水作业失察。
建议:由中经国际工程监理集团有限公司做出相应处理。
8.张维圆,汾阳市公用事业服务中心行业管理股股长,甲方工地代表,对监理单位、施工单位监督管理不到位,对施工单位擅自抽水作业失察。
建议:依据《安全生产领域违法违纪行为政纪处分暂行规定》给予相应的政纪处分。
9.宋启宁,汾阳市公用事业服务中心工程股股长,建设单位项目负责人,对项目管理工作有漏洞,对施工单位擅自抽水作业失察。
建议:依据《安全生产领域违法违纪行为政纪处分暂行规定》给予相应的政纪处分。
10.申东高,汾阳市住建局党组成员、公用事业服务中心主任,建设单位主要负责人,对汾阳市污水干管改造工程项目负责人和工地代表履职尽责情况督促不到位,负有领导责任(汾阳市委已免职)。
建议:依据《安全生产领域违法违纪行为政纪处分暂行规定》给予相应的政纪处分。
11.靳学强,汾阳市委常委、常务副市长,作为分管领导,对本起事故负有领导责任。
建议:靳学强向汾阳市政府党组作出检查。
六、事故防范措施及建议
各级各部门各单位要认真贯彻落实习近平总书记关于安全生产的一系列重要讲话和指示批示精神,牢固树立安全生产红线意识和以人为本、安全发展的理念,深刻汲取事故教训,举一反三,认真履行安全职责,强化各项安全措施落实,全面加强安全生产工作。
(一) 国安建设有限公司要严格履行安全生产主体责任,建立健全全员安全生产责任制、安全生产管理制度和操作规程。制定切实可行的应急救援预案和有关专项预案,强化安全风险辨识和隐患排查治理,杜绝各类“三违”行为。要将外来施工人员纳入本单位管理,强化对外来施工人员的安全生产条件和相应资质的审核,明确各自安全管理职责。要在抓好从业人员日常教育培训的同时,重点要开展好事故警示教育工作,要对事故进行认真的剖析和学习,教育员工熟悉岗位安全风险,掌握岗位操作规程,强化警示教育效果,切实增强安全防范意识。
(二) 汾阳市公用事业服务中心要深刻汲取事故教训,严格按照安全生产“党政同责、一岗双责,齐抓共管、失职追责”和“三个必须”的要求,强化对监管领域和行业的安全生产监督管理,对标“零事故”单位创建工作的各项具体要求,在系统内深入开展“双控”机制建设,真正建立起安全隐患排查治理工作制度化、常态化、长效化机制,做到隐患排查治理动态归零,切实提高安全生产监督检查能力,确保安全生产责任落实到位。
(三) 汾阳市政府要加强对安全生产工作的领导,依法履行安全生产监督管理职责,督促各监管领域落实安全生产主体责任,及时解决安全生产管理中存在的问题,管控风险,消除隐患,进一步加大全市建筑工程、市政工程监管力度,制定严格的管控措施,确保不再发生类似事故,维护好全社会安全生产企稳向好的大好局面。
晋公网安备 14112402160002号